Продам Двоповерховий будинок. Осокорки 4 км.. (№ 22-358-832)
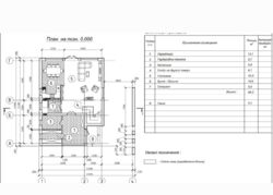
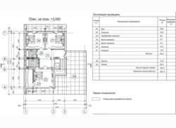
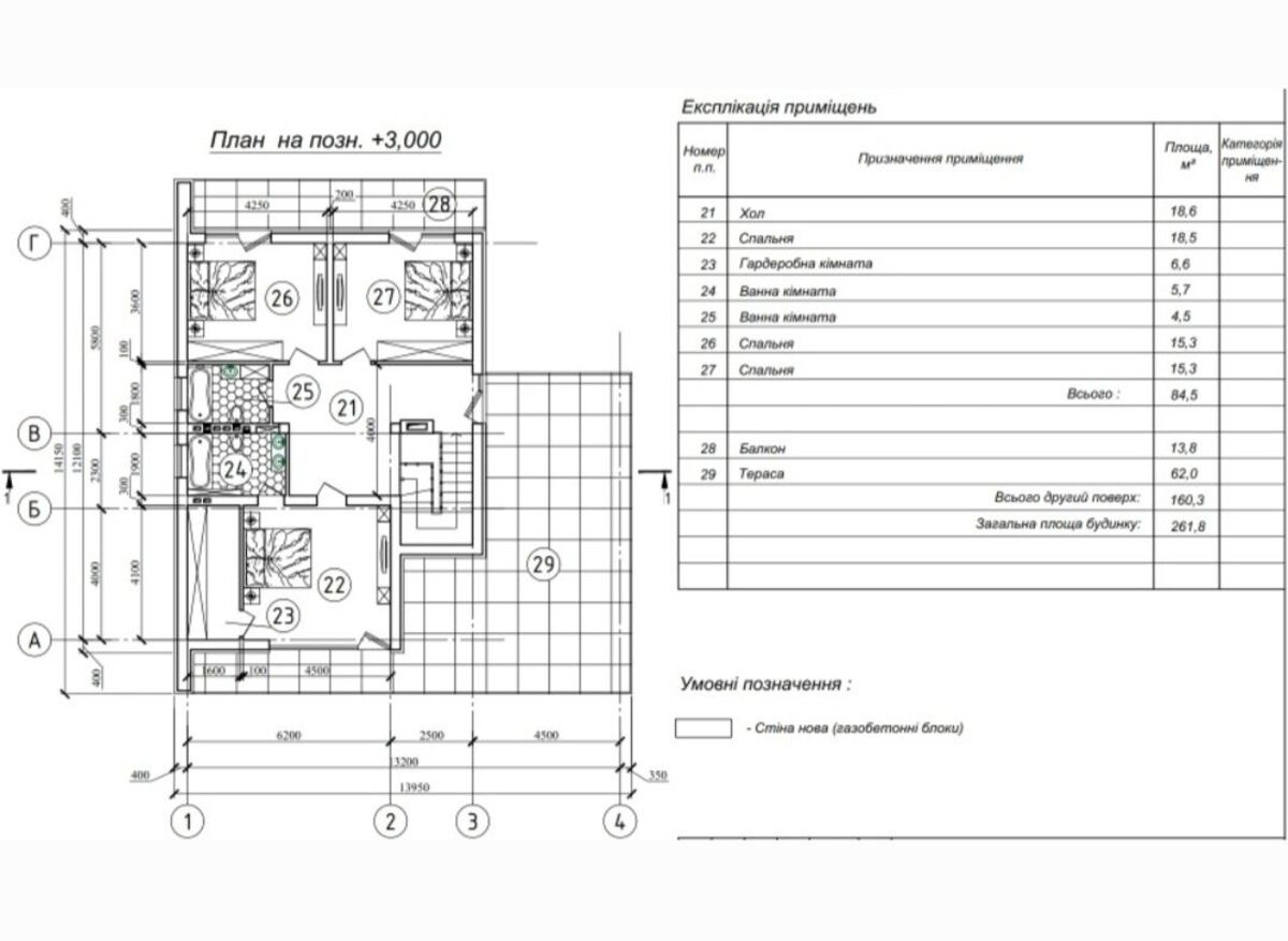
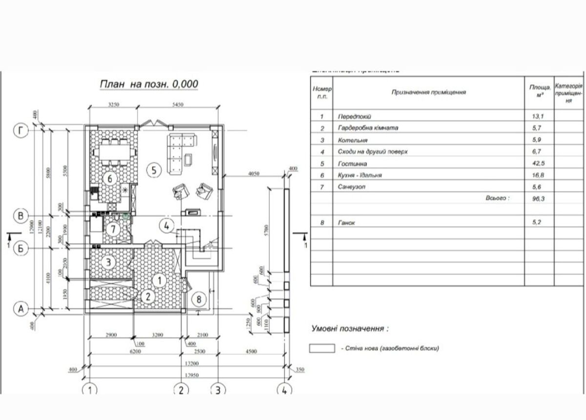
| Адрес: Киев, Дарницкий, м. Осокорки Тип: дом Этажей: 2 Спален: 3 Площадь дома: 261 м2 Участок: 12 сот Цена: 145 000 $
Двоповерховий будинок який збудовано по ексклюзивному проекту , та з дотриманням усіх будівельних норм. Будинок знаходиться в районі активного забудування, СТ ЕЛЬВІРА. Клуб Осокор в пішій доступності (300 метрів), озеро 50 метрів, до метро Осокорки 10 хвилин їзди( 4 км.) , поряд школи та дитячі садочки.З другого поверху будинку відкривається гарний вид на весь Київ.Дуже зручна траспортна розвязка та інфраструктура. Площа ділянки 12 соток. Загальна площа будинку 262.площа 185..дорогі пластикові вікна, двокамерний склопакет , профіль. Товщина рами 9 см.Фасад будинку утеплено та є можливість виконати роботи по зовнішньому обліцюванню стін матеріалом замовника.Дім дуже теплий та сухий. Покрівля двохсхила , встановлена мінвата товщиною 200. 2 шари рубороїду.На ділянку заведено електрику 15 кВт( є можливість збільшити потужність). Своя свердловина та два колодязі під каналізацію.Каналізація заведена в дім. На ділянку завезено чорнозем. На першому поверсі вільне планування кімнат. На другому поверсі 3 спальні та 2 сан вузли. | ||||||||||||||||||
















