Продаж двоповерховий будинок з ремонтом та меблями (№ 22-378-594)
| Адрес: метро Теремки, Новоселки, Киево-Святошинский, Киевская Тип: дом Этажей: 2 Спален: 3 Площадь дома: 104 м2 Участок: 5 сот Цена: 220 000 $
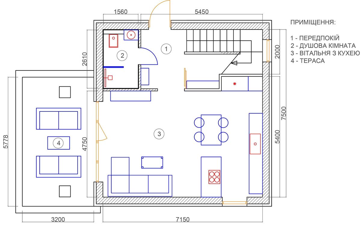
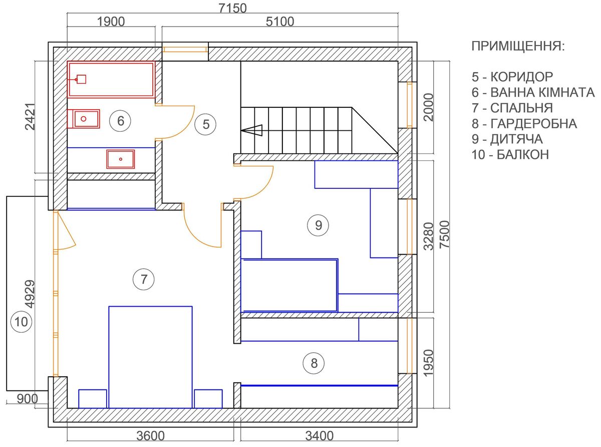
ОписаниеБудинок новий, робили для себе, продаємо через від‘їзд у зв’язку з роботою з усім all inclusive. Площа: 104.5 кв.м Локація: с. Новосілки, Києво-Святошинський район Відстань: Київ — 1.5 км; метро Теремки — 3.2 км. Поруч: ліс, озера, супермаркет (3 хв), закрита парковка для двох будинків, вся інфраструктура у пішій доступності. ПЕРШИЙ ПОВЕРХ: прихожа, велика зала-студіо з кухнею, санвузол з душем, гардеробна, вихід на терасу. ДРУГИЙ ПОВЕРХ: спальня з гардеробною кімнатою, санвузол, дитяча кімната, балкон, коридор. У будинку є: електричне опалення, уся підлога на 1-му поверсі з підігрівом (водяна підлона), на 2-му поверсі — тепла підлога (електричні мати); побутова техніка Teka (Німеччина), холодильник side by side Hitachi (Японія), італійські міжкімнатні двері прихованого монтажу. Корпусні та м‘які меблі, зроблені на замовлення З радістю відповім на всі питання.. | ||||||||||||||||||||

















