Продається будинок без ремонта у Гатному 10 соток, 4 спальні. (№ 22-412-766)
| Адрес: Киевская, Киево-Святошинский, Гатное Тип: дом Этажей: 2 Спален: 4 Площадь дома: 200 м2 Участок: 10 сот Цена: 150 000 €
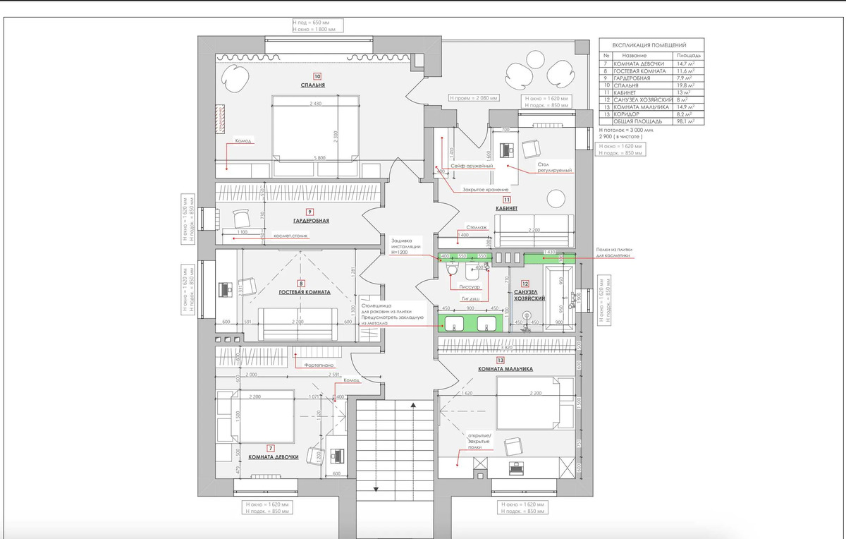
Продаю будинок 200 м2 з ділянкою 10 соток в Гатному, всього за 5-10 хв їзди до Києва. Будинок знаходиться в затишному, мальовничому місці з чудовою панорамою на заповідну лісову зону, поряд з якою знаходяться озера. Будинок збудований на горі для того щоб фасадні вікна мали панорамний вид на ліс. Задня частина будинку зроблена з монолітного бетону товщиною 40см (клас B25) що може слугувати як бомбосховище. Є поетапні фото і відео різних фаз будівництва. Проект будинку був узгоджений, затверджений і відповідає всім ДБН. Також є дізайн проекту з архитектурною частиною для легкої реалізації подальшого ремонту. Будинок будували для себе, тому використовували тільки якісні матеріали: Фундамент: - монолітний стрічковий. армований (клас B25) Матеріал стін: - Газоблок Аерок (D400) Вікна: Kommerling 2 скла (7-камерна система). Розсувне вікно 3 метра Aluprof з максимальною ізоляцією (підрядник Glasso.ua) Дах: - корейська металочерепиця матова, утеплена мінеральною ватою 200 мм. Фаза будівництва: Розведена електрика, наступний крок штукатурка. Комунікації: Електрика: 25 кВт, 3 фази. Вода: - зі свердловини 48 м. Інтернет і телебачення - оптоволокно 300 Mbps В пішій доступності школа, магазин та зупинка громадського транспорту! Відразу навпроти будинку чудовий парк для прогулянок, та ранкових пробіжок! Місце супер круте і гарне. Ціна 150000 евро. | ||||||||||||||||||||||||





















