Продаж окремо стоячої будівлі м.Київ, м.Лукьянівська 5хв.пішки  (№ 24-102-324)

Продаж окремо стоячої будівлі м.Київ, м.Лукьянівська 5хв.пішки фото 1
Продаж окремо стоячої будівлі м.Київ, м.Лукьянівська 5хв.пішки фото 2Продаж окремо стоячої будівлі м.Київ, м.Лукьянівська 5хв.пішки фото 3
Продаж окремо стоячої будівлі м.Київ, м.Лукьянівська 5хв.пішки фото 4Продаж окремо стоячої будівлі м.Київ, м.Лукьянівська 5хв.пішки фото 5
Продаж окремо стоячої будівлі м.Київ, м.Лукьянівська 5хв.пішки фото 6 

Адрес: Киев, Шевченковский, м. Лыбедская

показать на карте

Тип: объект сферы услуг, гостиница, отель, прочее

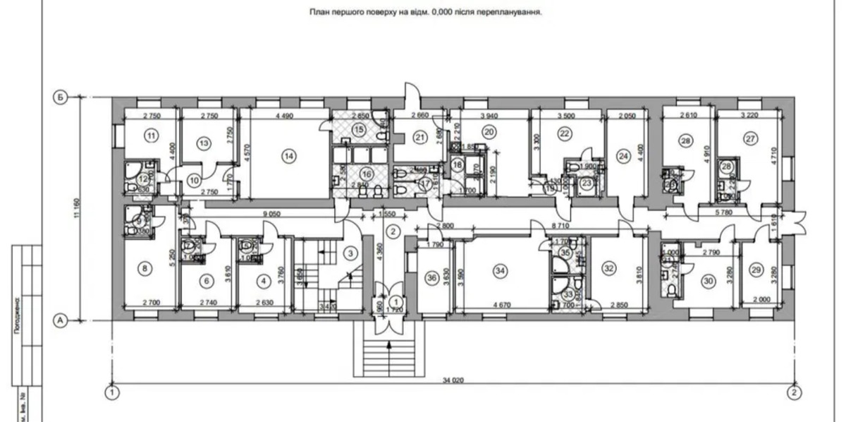
Площадь: 320 м2

Этаж: 1 / 2

Доп. информация: отдельный вход, парковка

Цена: 400 000 $

Контакты: Татьяна Викторовна
+380500580121
neruhomist.kiev@ukr.net

Описание

Продаж окремо стоячоі будівлі.
Продаж окремо стоячої будівлі у Шевченківському районі м.Києва, м Лукьянівська Розташована біля ст метро «Лукьянівська», 5 хв пішки.
Дуже зручний доступ до головних транспортних мереж та центральних частин міста.
Будівля у стані незавершеної реконструкції. 
Приміщення планувалось під готель. Ідеально підійде під хостел, лабораторію, офіс.
Загальна площа першого поверху - 320 м.кв. Перший поверх будівлі має 10 номерів з окремими зручностями для проживання, а також адміністраторську, службові приміщення. Здійснено облаштування мансардного поверху, 200 кв м + Автономне газове опалення та підігрів води. Електрика 15 кВт Водопостачання централізоване. Половина приміщень підготовлені до чистового фарбування та установки сантехніки.  Реконструкція 2020р. Нова утеплена покрівля. Утеплений фасад. Нові вікна. Нові батареї опалення першого поверху..
Відстань до найближчого міста: У місті;
Розташування: Окрема будівля;
Тип обєкта: Адміністративна будівля;
Рік побудови/здачі: 1960 - 1979;
Cанвузол: Так;
Тип офісу: Кабінетний тип;
Опалення: Централізоване;
Ремонт: Ні;
Комфорт: Госп. приміщення, комора, Меблі на кухні, Душова кабіна, Ванна;
Меблювання: Ні;
Комунікації: Центральна каналізація;
Інфраструктура (до 500 метрів): Метро, Центр міста, Офіси, бізнес центр, Аптека, Відділення банку, банкомат, Транспортна розвязка;


Заказать обратный звонок