Продам нежитлове приміщення в 202м2. (№ 2-488-004)
| Адрес: ЖК Паркове Місто, Киев, Подольский, м. Оболонь Тип: торговые площади, объект сферы услуг, прочее Площадь: 202 м2 Этаж: 1 / - Цена: 165 000 $
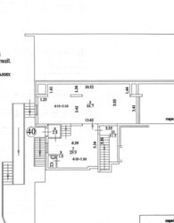
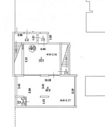
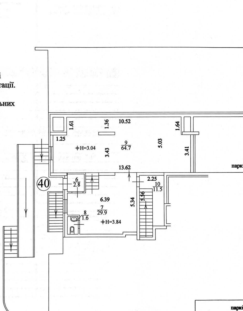
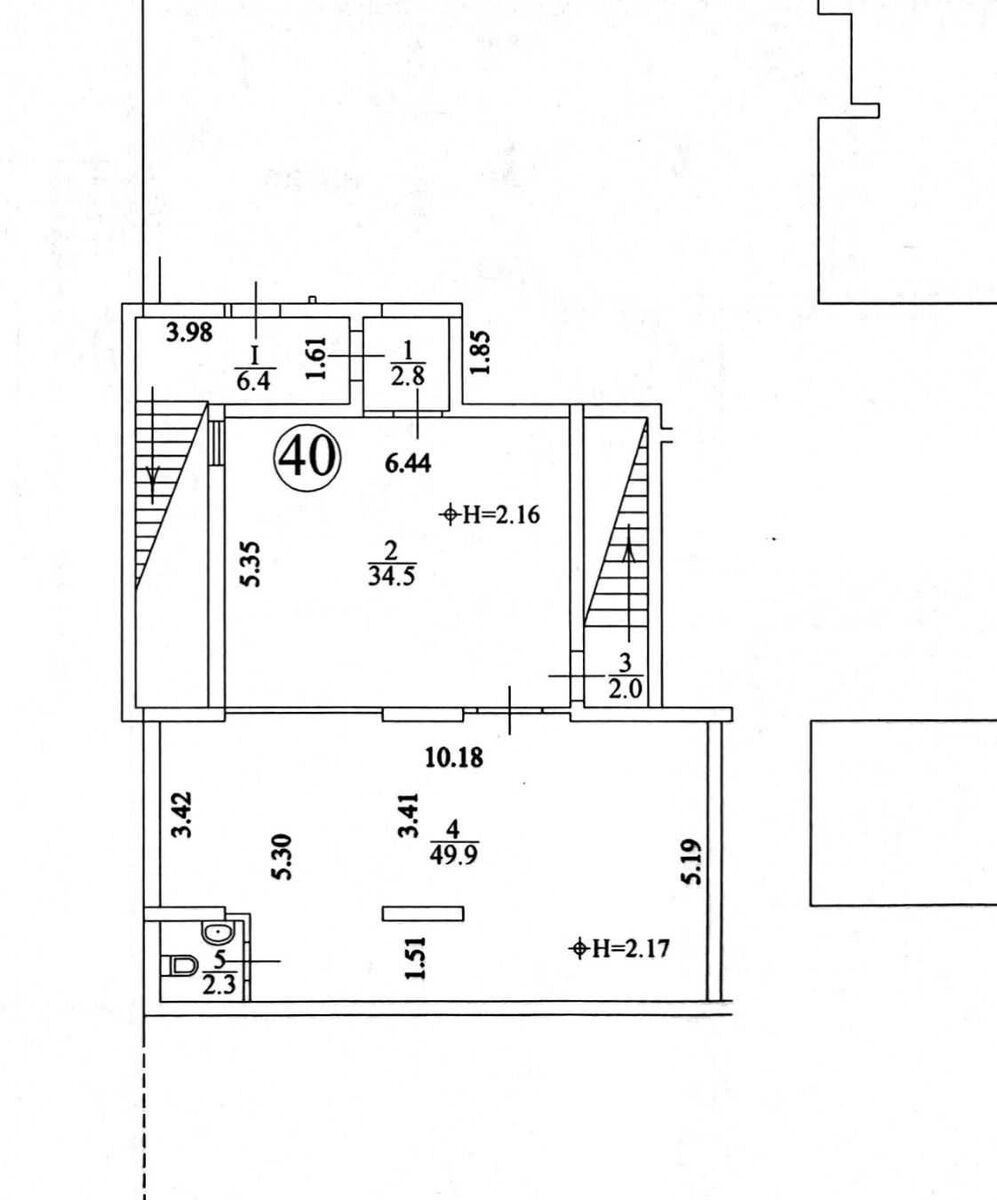
ОписаниеПродаж нежитлового приміщення в ЖК Паркове Місто. Вул Вишгородська 45. Загальна площа 202 кв.м. Перший поверх та підвал. Оба рівні мають 2 окремі входи, та можуть використовуватись окремо. 2 окремі вводи електрики. В ЖК 3355 квартир, та 8000 жителів. В комплексі власний парк, озеро, вся інфраструктура - магазини, ресторани, Нова Пошта.. | ||||||||||








