Продажа помещения на Подоле 150м2 СРОЧНО. (№ 2-488-672)
| Адрес: Кирилловская, 6а, Киев, Подольский, м. Контрактовая площадь Тип: торговые площади, кафе, бар, ресторан, объект сферы услуг, прочее Площадь: 150 м2 Этаж: 1 / 2 Цена: 150 000 $
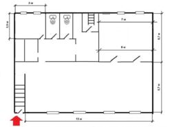
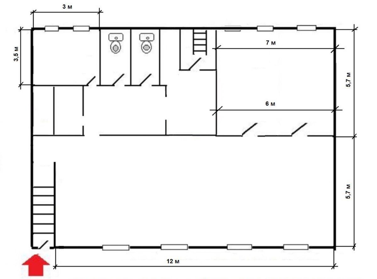
ОписаниеУникальное предложение для, реализации любых бизнес-идей! Это помещение идеально подходит для любого типа: от кафе до ресторанов (ранее был ресторан грузинской кухни), магазина, офиса, студии или салона красоты. Близость к деловым и туристическим центрам города гарантирует постоянный поток клиентов, (всего в 3х минутах от Контрактовой площади), Кирилловская 6а. Помещение площадью 150 квадратных метров, имеет отдельный вход с главной улицы, выход на тихую летнею террасу, расположено в цокольном этаже с наличием окон, 2 сан узла. (в продаже без мебели, что на фото).Это идеальное место для любого предпринимателя, который хочет начать свой бизнес в одном из лучших исторических районов Киева. Не упустите свой шанс приобрести данное помещение по самой выгодной цене для этой локации! Звоните и уже сегодня я с радостью покажу Вам его | ||||||||||||||||||















