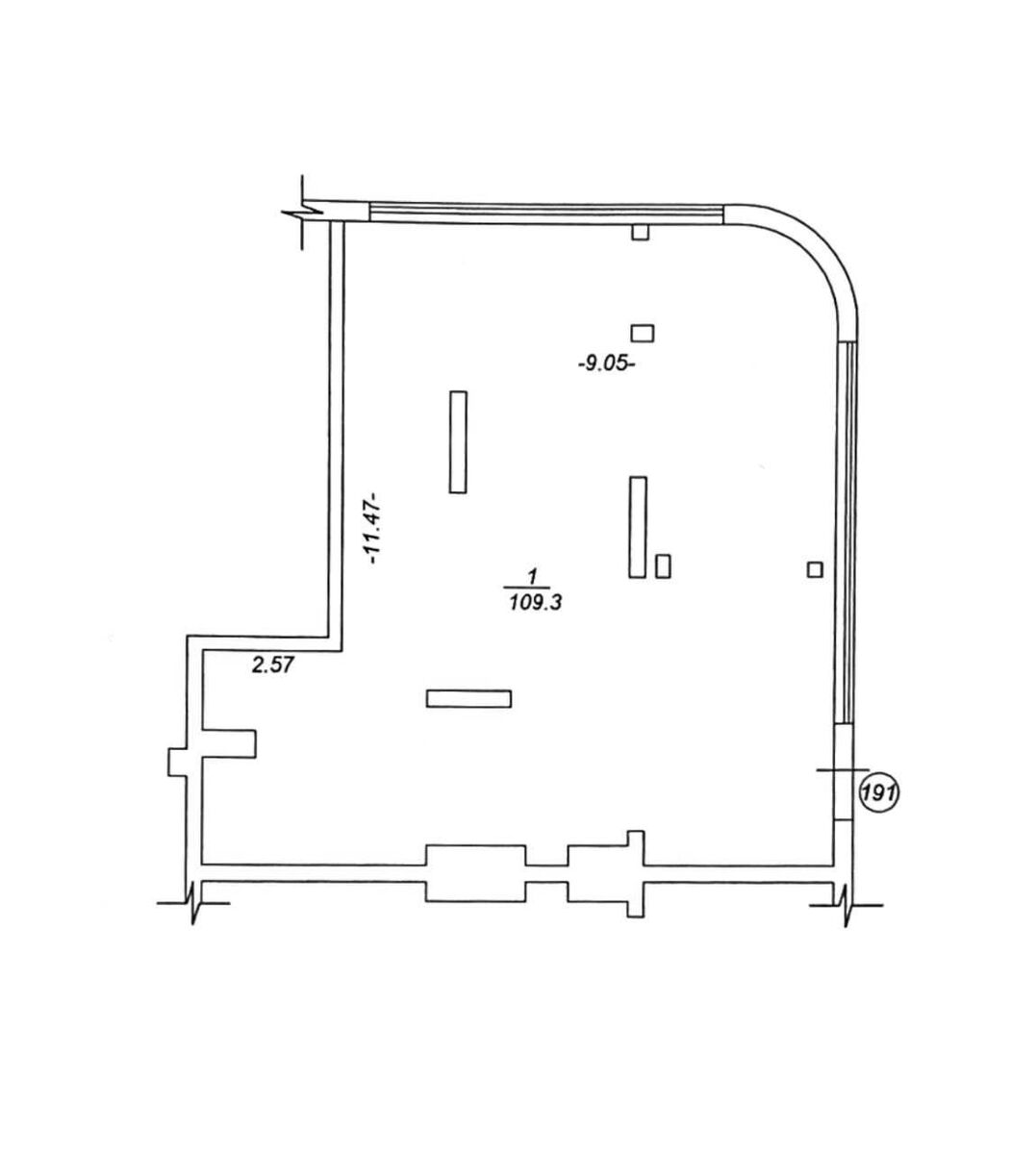
Приміщення під магазин, офіс площею 88,2 кв.м. (№ 2-488-675)
| Адрес: вул Чорновола., Вишневое, Киево-Святошинский, Киевская Тип: торговые площади, кафе, бар, ресторан, объект сферы услуг, прочее Площадь: 88 м2 Этаж: 1 / 9 Цена: 800 $
ОписаниеПродаж нежитлових приміщень Розташовані на першому поверсі заселеного ЖК.Право власності оформлено, продаж за договором купівлі-продажу. Є декілька варіантів площею від 88,2 до 134 кв.м. по ціні 800$ за м.кв.. | ||||||||||||









