Продається комерційна нерухомість з гарним трафіком (№ 2-491-081)
| Адрес: вул.Тростянецька, Киев, Дарницкий, м. Харьковская Тип: торговые площади, объект сферы услуг Площадь: 232 м2 Этаж: 1 / - Доп. информация: отдельный вход, парковка Цена: 165 000 $
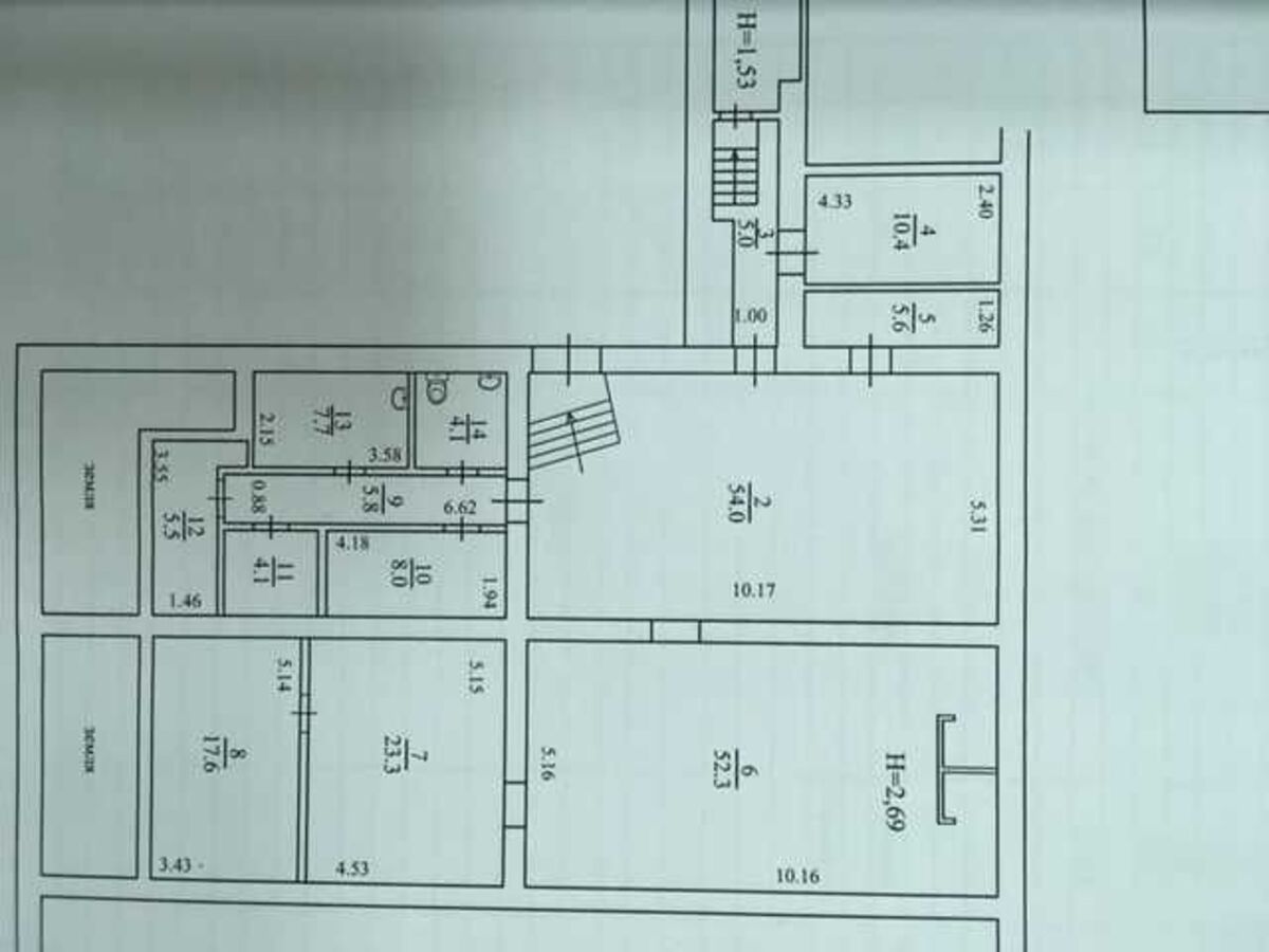
ОписаниеПродається комерційна нерухомість з гарним ремонтом за адресою: Дарницький р-н, . Загальна площа 232,4 м2. Окремий вхід, 1 кімната (29м2)на першому поверсі, інша площа -підвал. Власна система вентиляції, індивідуальне опалення, пожежна та охоронна сигналізації, інтернет – заведене оптоволокно. Чудово підійде для офісу, магазину, салону краси, складу. 15-20 хв пішки від метро Харківська, прохідне місце, поряд зупинка громадського транспорту. навпроти ТЦ «Нью Вей», в цій ж будівлі відділення Нової Пошти. Є маленька парковка. | ||||||||||||||||||
















