Продаж виробничо-складського комплексу 2954 кв.м 0,96 га (№ 2-494-134)
| Адрес: Киевская, Броварской, Бровары, Сергія Москаленка,, 16 Тип: объект сферы услуг Площадь: 2954 м2 Этаж: 1 / 2 Участок: 96 сот Цена: 591 000 $
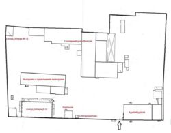
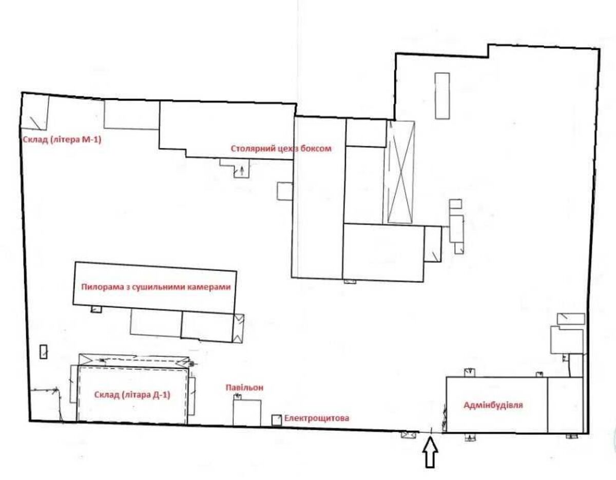
Продаж виробничо-складського комплексу 2954,7 кв.м в Київській області. Адреса: м. Бровари, вул. Сергія Москаленка, 16 Загальна площа будівлі - 2 954,7 кв.м. Земельна ділянка - 0,965 Га, Кадастровий номер: 3210600000:01:047:0002 Правовий статус: оренда. Опис обєкта: Комплекс складається з будівель: Столярний цех з боксами - 1354,3 кв.м Адміністративний корпус - 661,2 кв.м Пилорама - 535,4 кв.м Склад з підвалом - 356,6 кв.м Склад - 47,2 кв.м Інженерне забезпечення: Електрика - 60 кВт (є можливість збільшення потужності) Водопостачання та каналізація - центральні Розташування: комплекс розташований на червоній лінії по вул. Сергія Москаленка. Поруч зупинка громадського транспорту, відділення пошти. Активний трафік, ЖК, ТЦ Атлант, магазин Фора. Відстань від Києва -14 км, від Броварської окружної дороги – 500 м. Вартість комплексу: 591 000 у.о. (200 у.о.кв.м) Продаж від власника без комісії. | ||||||||||||||||













