Велика знижка! Терміново, комерція ЖК 4U Академмістечко, (№ 2-494-376)
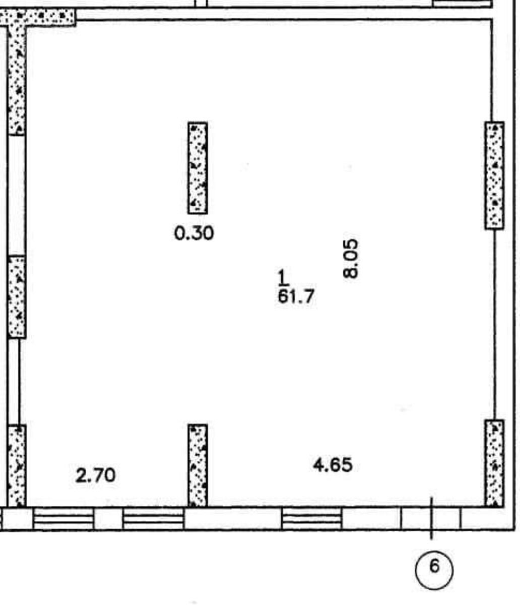
| Адрес: житловому комплексі 4U, Киев, Святошинский, м. Академгородок Тип: торговые площади, кафе, бар, ресторан, объект сферы услуг Площадь: 61 м2 Этаж: 1 / 24 Цена: 74 000 $
ОписаниеПродається комерційна нерухомість в житловому комплексі 4U. Знаходиться лише за 10 хвилин пішки від м.Академмістечко. Площа 61 м2 Ступінь заселення будинку 70% Характеристики: Фасадна нерухомість, біля центрального входу в будинок, що забезпечує доступність і трафік. Потужність: 20 кВт, три фази, що забезпечує можливість встановлення широкого спектру обладнання та надійне живлення. Опис: Пропонується унікальна можливість придбати нежитлове приміщення у житловому комплексі комфорт класу '4U', що знаходиться в 10 хвилинах пішки від метро Академмістечко. Нерухомість ідеально підходить для розміщення різних видів мережевого бізнесу, зокрема салону краси, стоматології, медичної консультації, кафе, офісу або сервісного центру. Додаткові переваги: Ціна нижче ринка. Розташована в жилому будинку, що забезпечує потік клієнтів. Фасад біля входу в будинок. 4 фасадних вікна. Є право властності. Зручний доступ до центру міста та основних транспортних магістралей. Поблизу розташовані парковки для клієнтів. Ціна була 83000 зараз 74000 | ||||||||||||









