Продам офісно–виробничий комплекс 1440м2 (№ 2-494-382)
| Адрес: Киев, Днепровский, м. Лесная Тип: объект сферы услуг Площадь: 1440 м2 Этаж: 1 / 2 Участок: 24 сот Цена: 990 000 $
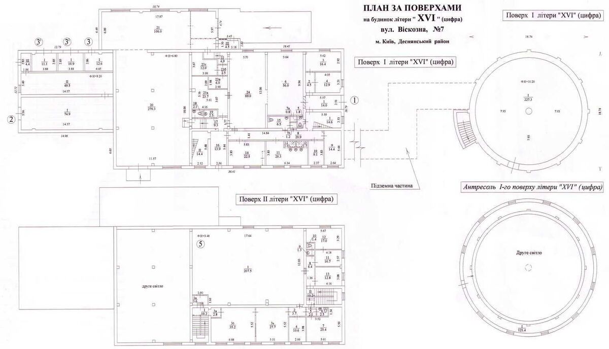
ОписаниеКапітальна, двоповерхова офісно-виробнича будівля загальною площею 1440 кв.м. з усіма комунікаціями: - холодне водопостачання (господарсько-побутове використання) - побутова та зливова каналізація. - гаряче водопостачання (5 санвузлів та душова, обладнані електробойлерами) - автономно-локальне опалення (з регульованим температурним режимом). - електропостачання (220/380В) із можливістю споживання до 500КВт. - система пожежної сигналізації цілодобового моніторингу, другого типу оповіщення із підключенням на пульт охорони. Пожежний гідрант. - Система проточно-витяжної вентиляції. - Побутові кондиціонери (спліт системи настінного типу). - оптико-волоконні телекомунікації Територія освітлена (нічне освітлення працює від датчиків). Поруч залізнична гілка з рампою, газ. Комплекс зручно розташований поряд ст. метро 'Лісова', 'Чернігівська', торгові центри 'Даринок', 'Епіцентр'. | ||||||||||||||||













