Продажа 1-ой квартиры ЖК Ботаник Хаус, (№ 212-723-876)
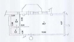
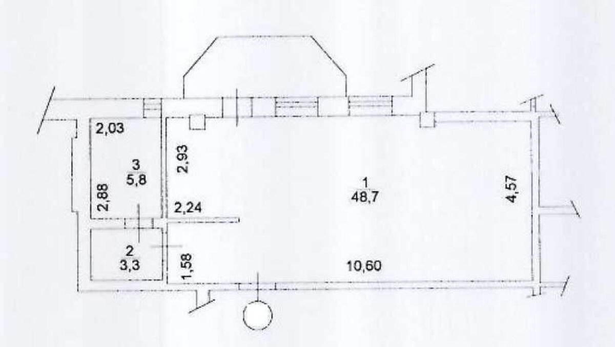
| Адрес: Киев, Печерский , ул. Болсуновская, 23., м. Дружбы народов Комнат: 1 Площадь: 60 / - / 15 м2 Этаж: 3 / 7 Цена: 110 000 $
Продажа 1-ой квартиры по ул. Болсуновской 23 | ||||||||||
| Адрес: Киев, Печерский , ул. Болсуновская, 23., м. Дружбы народов Комнат: 1 Площадь: 60 / - / 15 м2 Этаж: 3 / 7 Цена: 110 000 $
Продажа 1-ой квартиры по ул. Болсуновской 23 | ||||||||||
