Арсенальна метро, верхній Печерськ, Зоряний.. (№ 212-735-668)
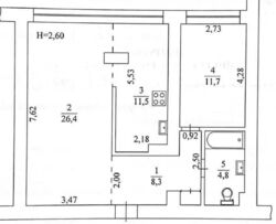
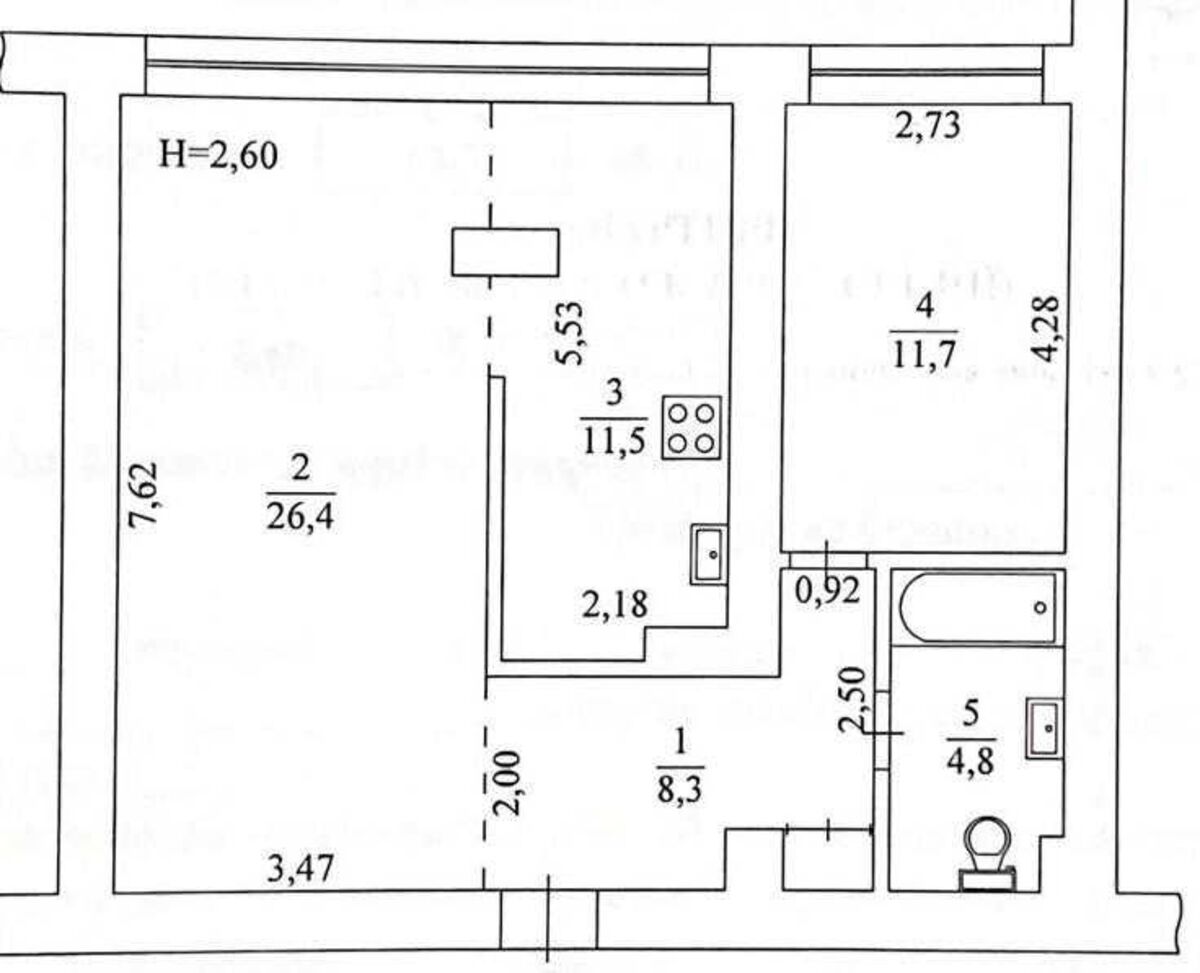
| Адрес: Киев, Печерский , м. Арсенальная Комнат: 2 см/рз Площадь: 63 / - / 12 м2 Этаж: 6 / 13 Санузел: 1 Цена: 155 000 $
Печерський р-н, вул. Михайла Омеляновича-Павленка (раніше Суворова), буд. 13. Двокімнатна квартира на 6 поверсі 13 поверхового будинку. Площа 63/38/12 кв.м. Квартира з якісним ремонтом, меблями та технікою. Будинок у другій лінії, великий двір. Поруч парк Слави, метро Арсенальна, школа, садочок.. | ||||||||||||||











