Новопечерська вежа , печерск , зверінецька. (№ 212-747-703)
| Адрес: Киев, Печерский , м. Дружбы народов Комнат: 2 разд Площадь: 89 / - / 28 м2 Этаж: 19 / 26 Санузел: 2 раздельный Балкон: балкон Цена: 280 000 $
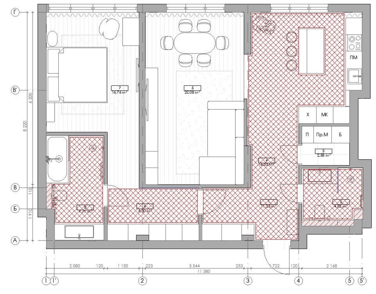
ОписаниеПродається квартира в елітному районі в ЖК Новопечерська Вежа на вул. М.Бойчука, 41, Печерськ. 2 кімнати, 2 сан. вузла, пральня, кухня. Площа 87,2 м2. поверх 19 Квартира оздоблена :Техніка Samsung: пральна машина, сушильна машина, TV діагональ 75, винна шафа, холодильник, посудомийка, варильна поверхня, духовка, бойлер на 100 літрів, система очищення води. У квартирі встановлено систему підігріву підлоги. Система охорони сигналізації, система контролю потопів. 3 кондиціонери. Сантехніка та змішувачі Італія.. | ||||||||||||||||||
















