Продам 3-кімн. кв. ЖК Галактика, від власника, СРОЧНО! (№ 212-929-200)
| Адрес: вул. Е.Сверстюка, 6-Д, Киев, Днепровский, м. Левобережная Комнат: 1 разд Площадь: 92 / 47 / 21 м2 Этаж: 24 / 25 Санузел: 2 раздельный Балкон: балкон Доп. информация: новостройка Цена: 150 000 $
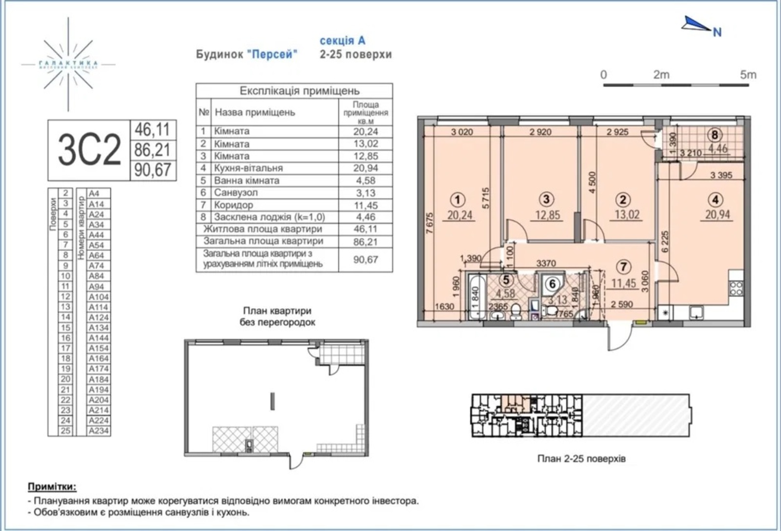
ОписаниеАктуальна пропозиція. Документи на руках. Пропоную 3-х кімн. кв. загальною площею 92 м.кв, 24/25 пов., 91.5/47/21 в ЖК 'Галактика', вул. Е.Сверстюка 6-Д, будинок Персей. Квартира з дуже вдалим плануванням 3С2, без оздоблення, всі вікна виходять у двір, не кутова. Концепція ЖК двір без машин. Комплекс комфорт-класу від Stolitsa Grup. Побудований з якісних матеріалів, стіни з червоної цегли, лазерна стяжка. Встановлені лічильники води, тепла, електроенергії, прилади опалення з регуляторами температури. Енергозберігаюче скління 'Rehau', вхідні бронедвері класу EL-30. Біля будинку є гостьовий паркінг, поруч багаторівневий наземний паркінг. Дуже розвинута інфраструктура: магазин 'Novus' 2 хв, ст. метро 'Лівобережна' 7хв, ринок, ТРЦ 'Комод', театр, спортклуби, кафе, ресторани, Русанівський канал, р. Дніпро. Гарна локація для проживання з дітьми. Багато гарних гімназій, ліцеїв, шкіл, дитсадків, гуртків.. | ||||||||||||










