Помещение фасад 2 входа 114 кв.м. Л.Украинки 23. (№ 239-421)
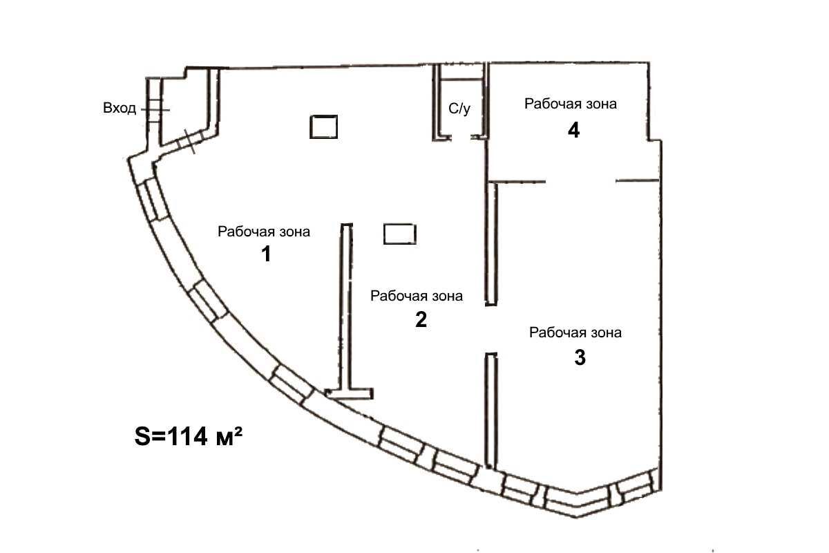
| Адрес: Л.Украинки, 23, Киев, Печерский , м. Печерская Тип: нежилое помещение в жилом доме Площадь: 114 м2 Кабинетов: 4 Этаж: 1 / 4 Цена: 315 000 $
ОписаниеПродается помещение на Печерске, недалеко от ст. метро Печерская, бул. Л. Украинки, 23. Общая площадь 114 кв.м. Первый этаж, нежилой фонд, отдельный фасадный вход + дополнительный вход. Помещение состоит из четырех рабочих зон, санузла и кухни. Высота потолков 3,5 метра. Пожарная и охранная сигнализации, внутреннее видеонаблюдение, высокоскоростной интернет. Возможность использования: магазин, салон, офис.. | ||||||||||||||











