Продажа. ЖК.Carnegie. Кловский спуск 7. (№ 239-440)
| Адрес: Кловский спуск, 7, Киев, Печерский , м. Кловская Тип: нежилое помещение в жилом доме Площадь: 177 м2 Кабинетов: 5 Этаж: 36 / 45 Цена: 420 000 $
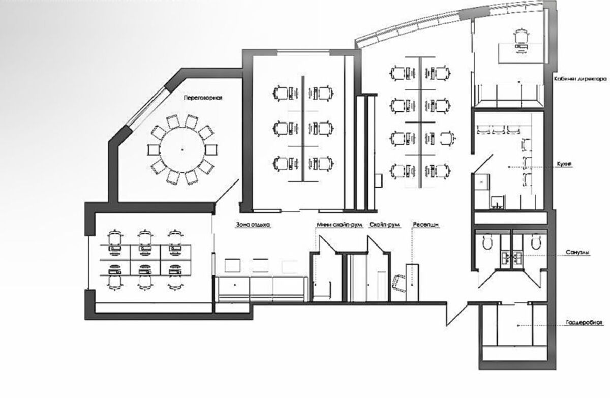
ОписаниеПродаж видового, полностью меблированного офиса 177 м2 Кловский спуск, 7. Вместе с Арендатором. Доходный бизнес - 12% годовых. Офис находится на 36 этаже в нежилом фонде. Помещение состоит из: трех рабочих кабинетов ( 10 , 6, 6 человек) , переговорной ( 10 человек), кабинета директора, ресепшена, кухни , двух скайп-комнат, двух сан.узлов, гардеробной, серверной и зоны отдыха. Количество рабочих мест - 22. Мебель и техника входят в стоимость аренды.Состояние помещения - идеальное, полностью новый ремонт, панорамные окна, подогреваемые полы в мокрых точках и рабочих зонах. Офис полностью укомплектован современной качественной мебелью. На кухне вся необходимая для офиса техника: холодильник, плита, микроволновка, чайник. Бойлер. Система кондиционирования, климат-контроль. Огромные панорамные окна с фантастическим видом на Печерск и центр города. Расположен на высоте 125 метров. Объективно - это лучший офис для IT -компаний в городе Киеве. В доме круглосуточная охрана, видеонаблюдение. Высокоскоростные лифты. Удобная развязка на основные транспортные магистрали города. Цена - 420 000$. | ||||||||||||||











