Продам офіс(138м2)з ремонтом та окремим входом на вул.Тургеньевська. (№ 239-506)
| Адрес: вул.Тургеньевська, Киев, Шевченковский, м. Лукьяновская Тип: нежилое помещение в жилом доме Площадь: 138 м2 Этаж: 1 / 9 Цена: 221 000 $
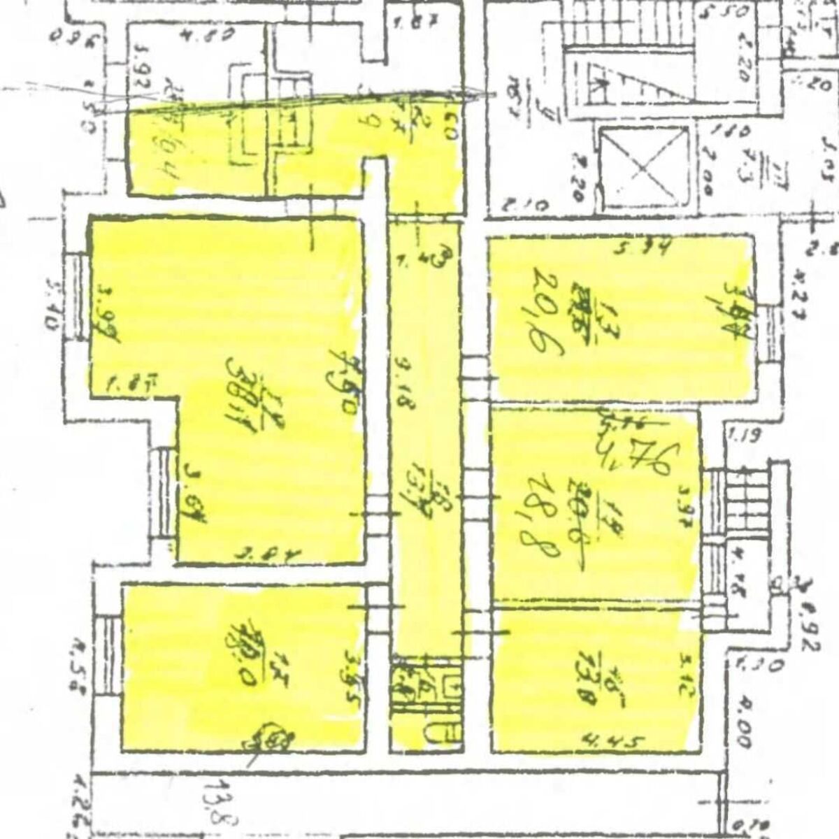
ОписаниеТургенєвська, 52-58, 5 кімн., 1-й поверх, площа: 138,0 кв.м; пропонується офіс на першому поверсі з окремим входом та ремонтом, розташований в центральній частині міста, 5 просторих кабінетів, переговорка, вікна на фасад та у двір, є парковка у дворі, поруч ресторани та магазини, ст.МЛукянівська - 15 хвилин;. | ||||||||||||||












